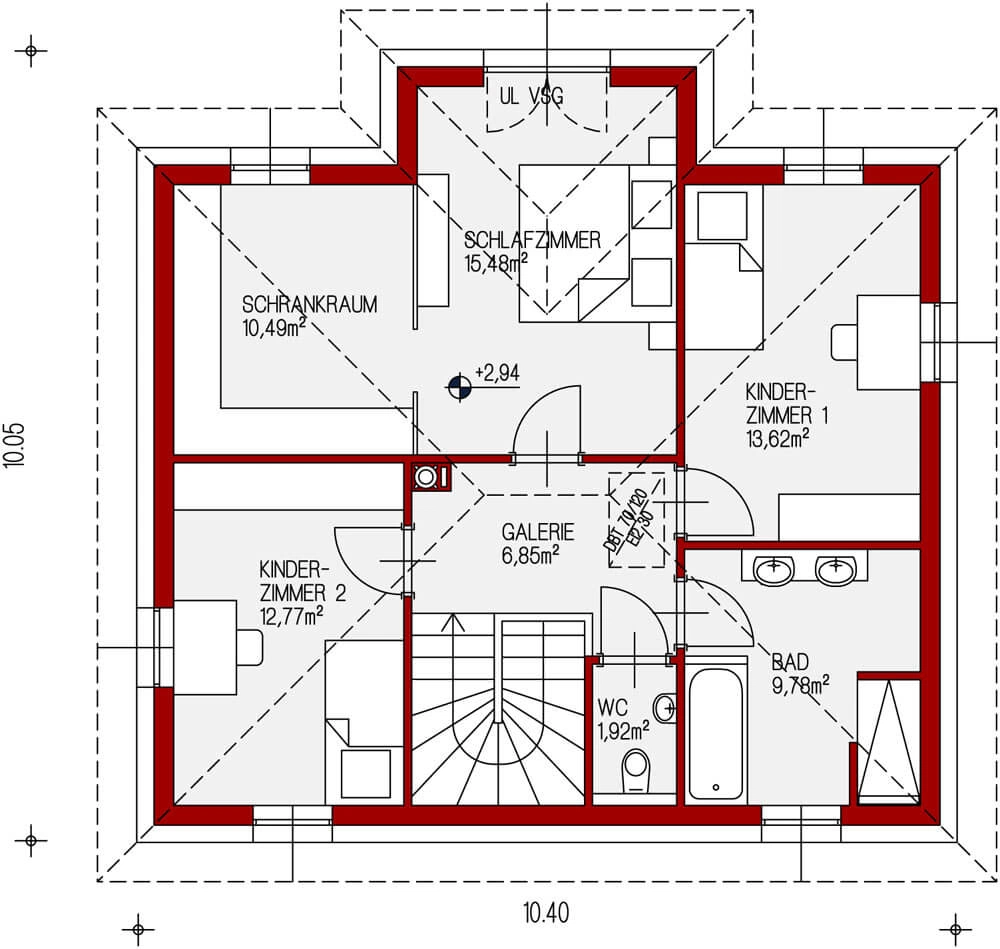
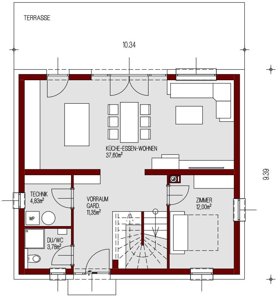
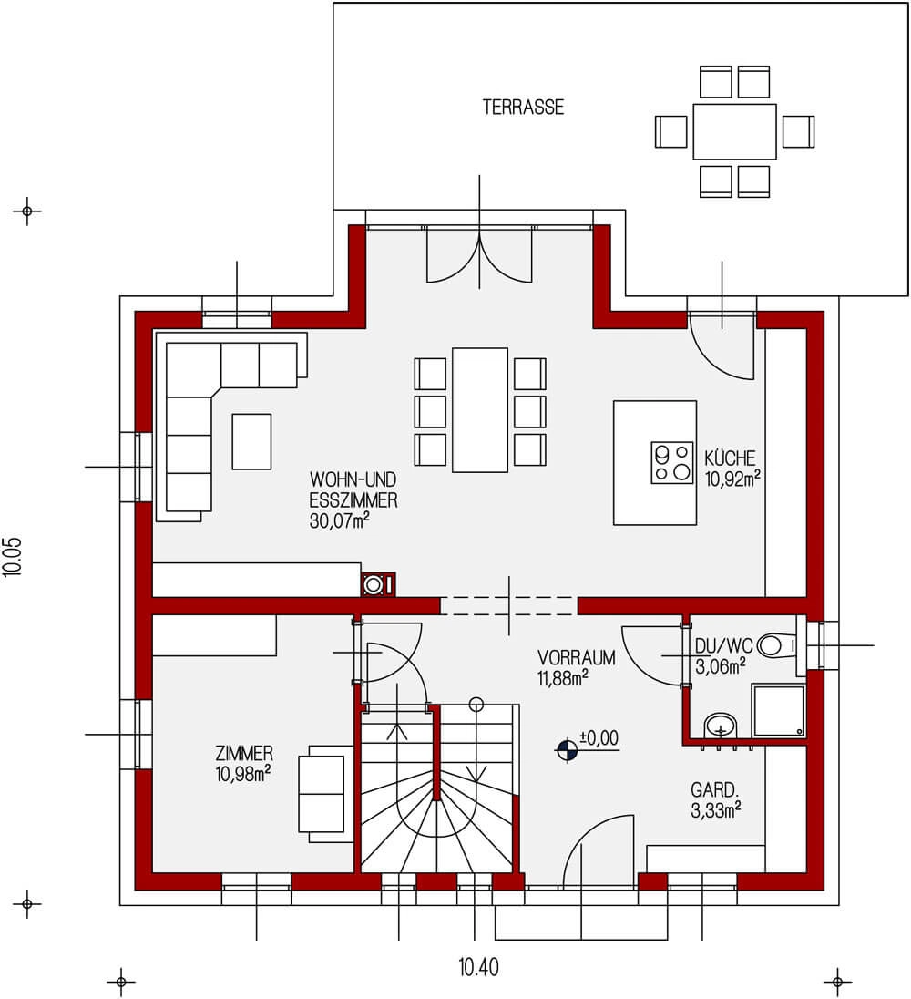
Großzügige Raumhöhe – „für die Freiheit“ Ihrer Kreativität.
„Altezza“ steht für großzügige Raumhöhe – Freiheit, die Sie Ihrer Kreativität beim Einrichten des Hauses lassen können. Durch große Fensteröffnungen und einem modernen Grundriss entstehen lichtdurchflutete Räume zum Wohlfühlen.
Die vom toskanischen Baustil inspirierte Dachform verleiht dem Charakter des Hauses ein südländisches Flair.
















