BERRETTO 143

Klassik trifft Moderne

BERRETTO 143

Klassik trifft Moderne

Berretto steht für eine ausgewogene Raumaufteilung mit Einflüssen der modernen Architektur.

Lichtdurchflutete, offene Lebensräume mit großzügiger Verglasung fördern das körperliche und emotionale Wohlbefinden für Sie und Ihrer gesamten Familie

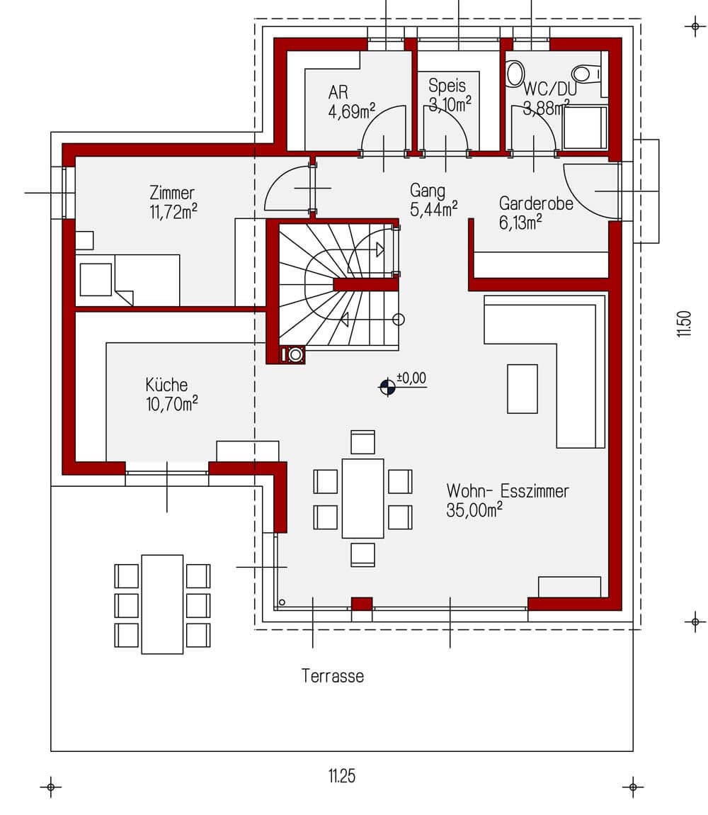
Erdgeschoß

80,66 m2

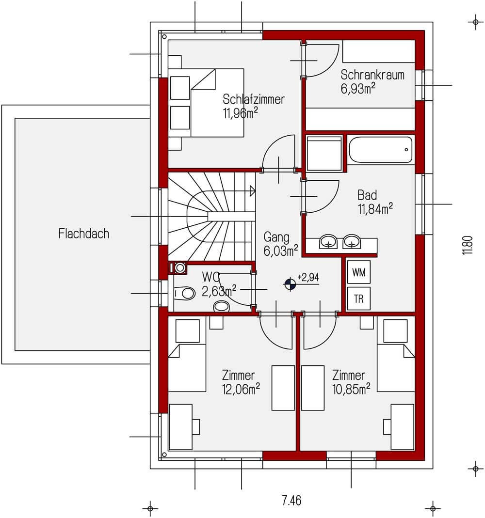
Obergeschoß

62,30 m2

Wohnfläche gesamt

142,96 m2

Kellergeschoß

80,59 m2

Preis ab

€ 300.000,–

Wir planen jeden Haustyp INDIVIDUELL für Sie und nach Ihren Vorstellungen

Grundriss

Gang
5,44 m2
Garderobe
6,13 m2
Küche
10,70 m2
Speis
3,10 m2
Wohn-/Esszimmer
35,00 m2
Zimmer
11,72 m2
Abstellraum
4,59 m2
WC/Dusche
3,88 m2
Erdgeschoß gesamt
80,66 m2

Fotogalerie

Fertigstufen und Preise

Preis ab:

€ 300.000,–
Planung: Vorentwurf, Entwurf, Einreichpläne, Baubeschreibung, Wärmebedarfsberechnung, Kostenvoranschlag.

1

Fertigstufe 1

Haus außen fertig, innen roh, inkl. Erdarbeiten mit Fundament und Bodenplatte

2

Fertigstufe 2

Haus außen und innen fertig, inkl. Erdarbeiten, Fundament und Bodenplatte

3

Fertigstufe 3

Haus außen fertig, innen roh, Keller roh

4

Fertigstufe 4

Haus außen fertig, innen fertig, Keller fertig

Referenzen – BERRETTO 143

Gemeinsam mit Ihnen geplant und umgesetzt