Cambiato 126 – stylisches Design, elgantes Wohnen … „we like it!“
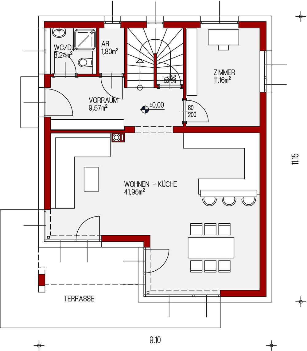
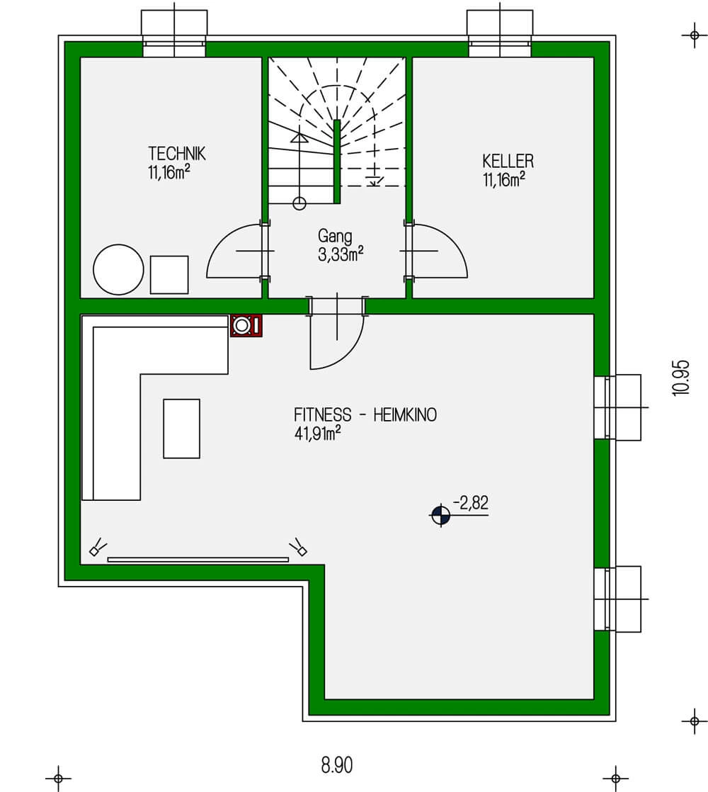
„Cambiato“ steht für ansprechende Architektur, optimale Grundrisslösung und flexible Planung – das sind die „Zauberworte“ für ihr persönliches Traumhaus!
Die Wohnräume werden durch die großzügig angeordneten Glasfächen optimal belichtet. Durch den modern gestalteten Balkonbereich haben Sie die Möglichkeit auch Ihre Wohnräume im Obergeschoß ins Freie zur erweitern.
 
								 
															 
															 
															












