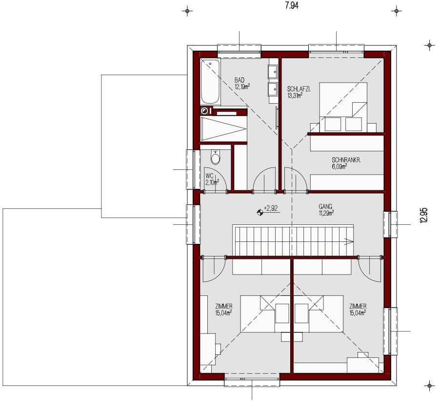
Helle Räume, klare Linien
Lumera ist ein modernes, zweigeschoßiges Einfamilienhaus, dass mit einem offenen Wohnraum, klarer Architektur und einer geraden Stiege als stylischem Highlight punktet. Die frische Gestaltung und der hohe Wohlfühlfaktor machen es zum idealen Zuhause für modernes Wohnen.















