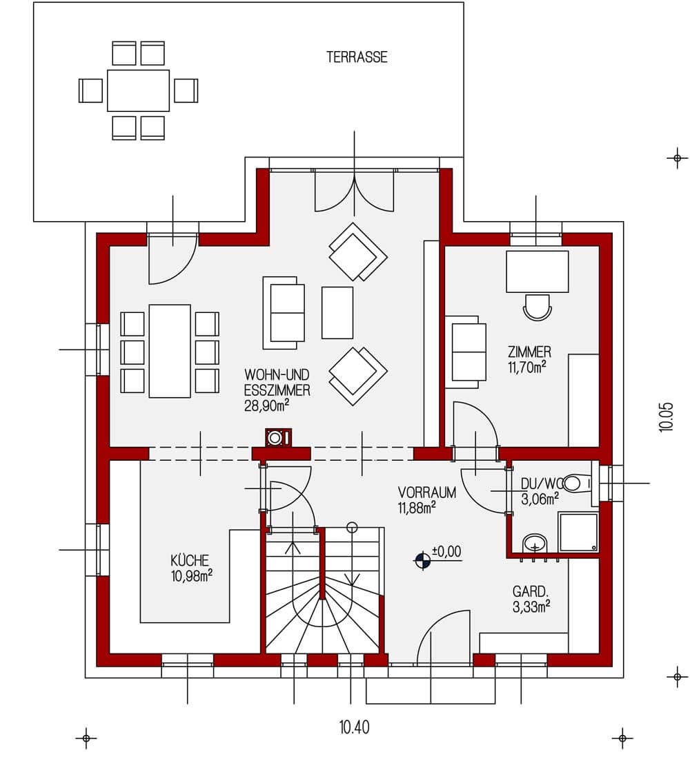
MATTONE 141: Klare Linien – nach allen Seiten offen, das ist Lebensqualität.
„Mattone“ steht für optimales Wohnklima und Wertbeständigkeit. Im Vorbau, meist zum Garten hin geöffnet, finden Sie sicher Ihren Lieblingsplatz.
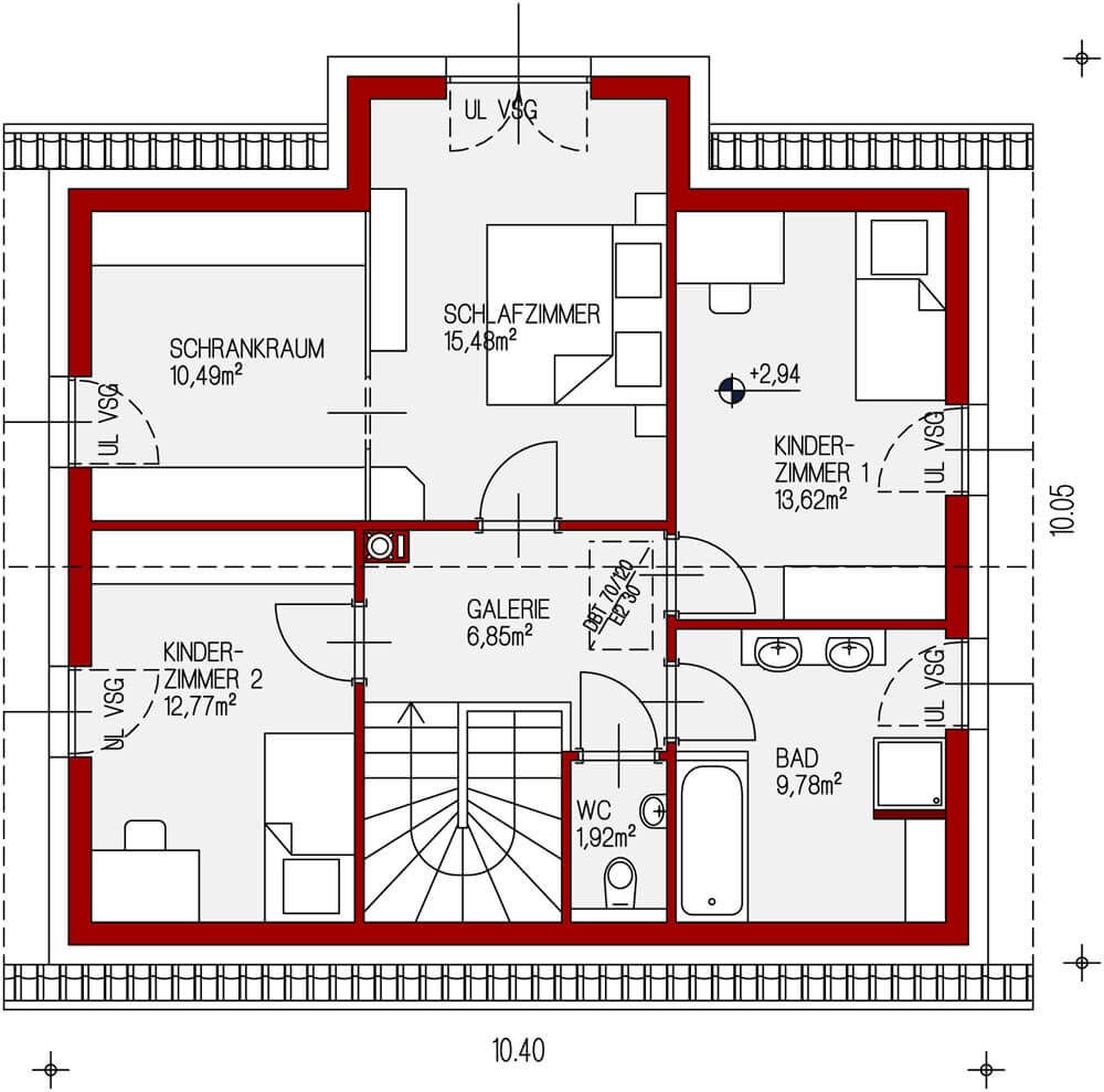
Die Natur ist nur einen Schritt entfernt. Der großzügige Luftraum samt Galerie gibt Ihnen ein Gefühl der Freiheit. „Mattone“ können Sie, so wie alle anderen Häuser, individuell gestalten und verändern..


























