Genießen Sie die Sonnenseite des Lebens …
„Scatola“ – die klaren Linien und die schlichte architektonische Eleganz lassen bereits von außen erahnen, was Sie innen erwartet.
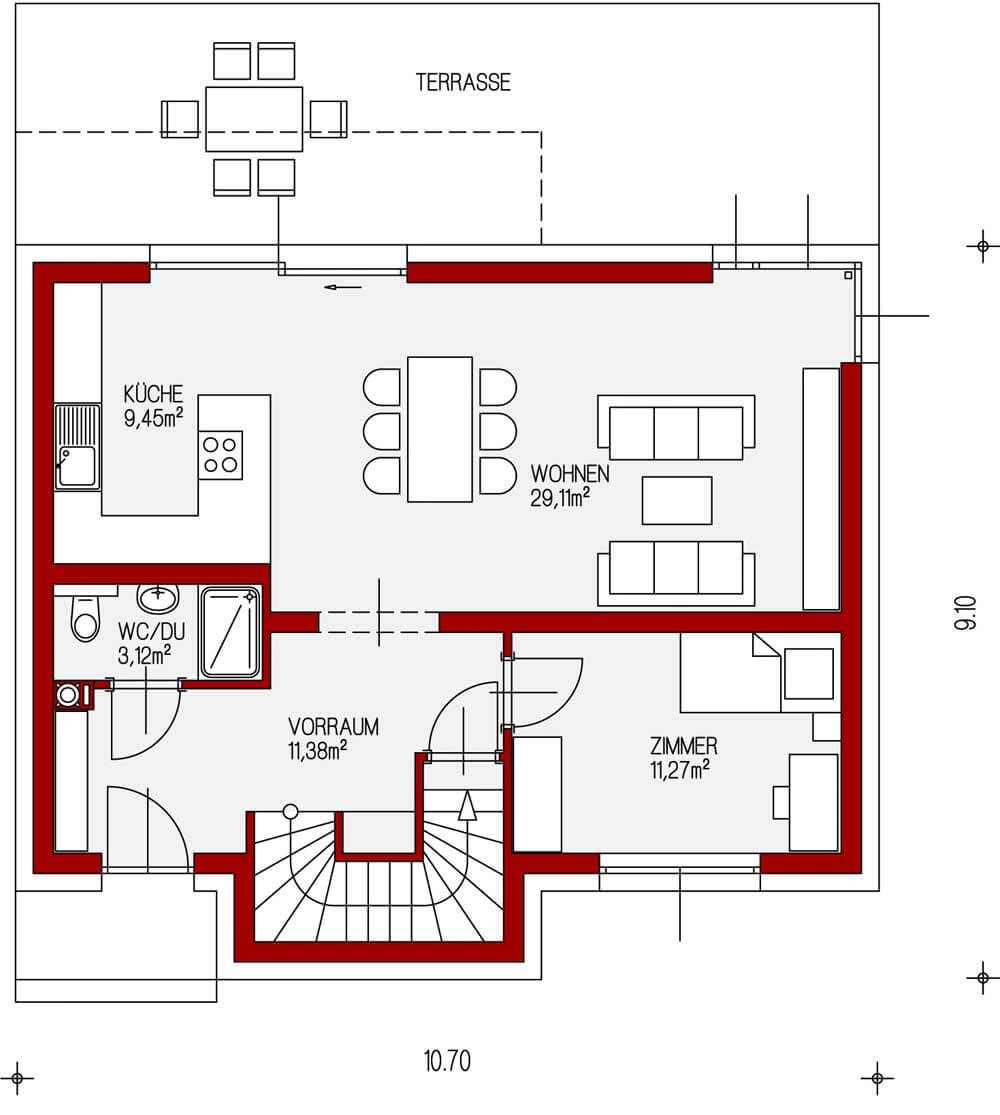
Die ineinander übergehenden Räume vermitteln ein Gefühl der Weite und die großen Glaselemente lösen die Grenze zwischen Haus und Garten auf.










